г. Великий Новгород, ул. Зелинского 26
г. Великий Новгород, ул. Зелинского 26
9:00–22:00

DK-036

Комплектация (каркасные дома):
(Нажмите на комплектацию, чтобы узнать подробнее)

Комплектация (дома из бруса):
(Нажмите на комплектацию, чтобы узнать подробнее)

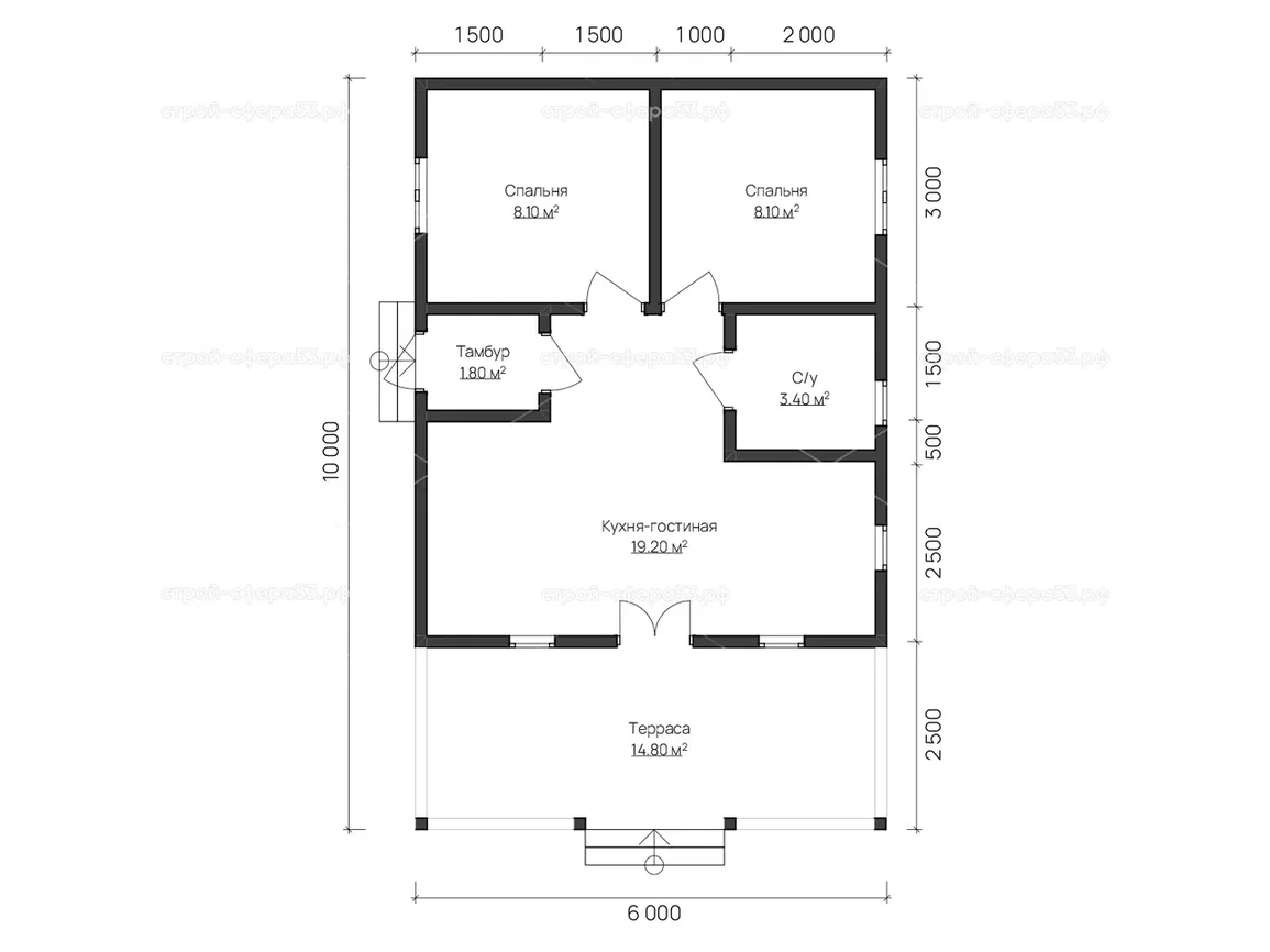
Квадратура и сроки домов:

Полезная площадь: 58кв

Площадь застройки: 63кв

Сроки строительства: 27 дней

Образец договора

Скачать файл

Понравился проект, но хотите внести изменения?

Рассчитаем стоимость за 1 день.

Обновите браузер до последней версии.